Chào mừng đến với cửa hàng trực tuyến của chúng tôi!
Tin tức
Kiến trúc sư ưu tiên sử dụng các loại đá granite, đá thạch anh làm vật liệu trang trí chủ đạo, tạo điểm nhấn cho các căn phòng. Phảng phất trong sự hiện đại là nét cổ điển được đặt tinh tế vào ngôi nhà, có thể kể đến như khu vực hầm rượu và giếng trời.

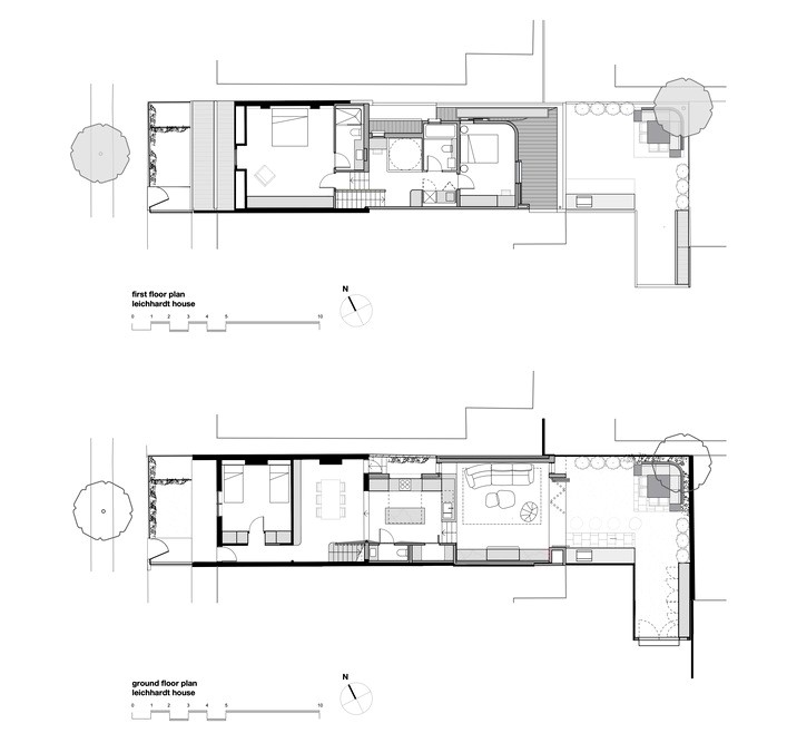
Công trình tọa lạc tại thành phố Sydney, Australia. Với diện tích khoảng 100 m2, kết cấu hình dáng chữ L đặc trưng của kiến trúc cổ, ngôi nhà được cải tạo nhằm mang đến cho gia chủ sự thoải mái và tiện nghi khi sinh sống.

Vân đá granite và đá thạch anh tô điểm cho kiến trúc nhà khách, đây cũng là không gian sinh hoạt chung của các thành viên trong gia đình.

Màu của gỗ, trần nhà kết hợp cùng màu của họa tiết đá và thảm tạo cho không gian sự hài hòa và nhẹ nhàng.

Phòng khách nhìn ra phần sân rộng phủ đầy cỏ xanh kín mặt sân. Nơi đây còn có lò nướng và ghế sofa phù hợp cho các buổi tiệc ngoài trời.

Phòng bếp có tông màu trắng chủ đạo, không gian được cung cấp một lượng ánh sáng tự nhiên lớn từ giếng trời phía trên.

Tường gỗ thiết kế phá cách tạo thành hệ thống tủ âm tường, nơi mà gia chủ có thể lưu trữ gia vị nấu nướng và các vật dụng bếp.

Khu vực bàn ăn được thiết kế ngay cầu thang dẫn lên khu vực tầng trên.

Căn phòng còn có lò sưởi trung tâm mang lại sự ấm áp cho cả không gian vào mùa đông.

Các song gỗ tại khu vực cầu thang đóng vai trò là bức tường ngăn cách với phòng ăn nhưng vẫn đảm bảo sự thoáng sáng nhờ vào thiết kế sọc dọc, nhóm kiến trúc sư chia sẻ

Cầu thang được làm bằng gỗ với màu sắc đồng nhất với nội thất gỗ trong nhà. Thiết kế của cầu thang không quá dốc và có tay vịn

Khu vực hành lang tầng trên thoáng sáng nhờ vào hệ thống giếng trời và khoảng thông tầng.
Phòng ngủ tạo điểm nhấn qua thiết kế đèn ngủ lấy cảm hứng từ các hành tinh trong dải ngân hà, một kệ sách âm tường thiết kế nhỏ gọn vừa vặn với không gian.

Xuyên suốt căn phòng vệ sinh là các mảng tường ốp đá màu xanh ngọc mang lại sự tươi mới, sạch sẽ. Bồn rửa mặt và tủ gương lớn mang lại sự tiện lợi trong sinh hoạt hàng ngày cho gia chủ.

Bản vẽ mặt cắt ngang công trình.


Sơ đồ bản vẽ chi tiết tầng 1 và 2 của ngôi nhà.
